fr

Votre recherche

Sous-offre
Coup de coeur
Durtol (63830)

7 pièces - 156 m²

Maison (156m2) véritable Havre de paix avec vue sur Clermont – Quartier Montchany, Durtol

490 000 €
Ref : 1668VH
Découvrir le bien

JAUDE Immobilier vous propose cette maison (156 m² - 5 chambres) sur deux niveaux, située dans le quartier résidentiel très recherché de Montchany à Durtol. Offrant un cadre verdoyant, une exposition plein Sud et une vue dominante sur Clermont-Ferrand, cette propriété est idéale pour une famille ou un projet de vie multigénérationnel à la recherche d'un cadre de vie paisible et proche de la ville.

Une configuration équilibrée sur deux niveaux :

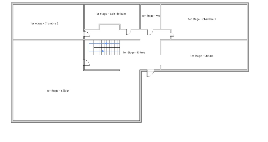
À l’étage (101 m²) :

- Séjour traversant de 36 m² avec poêle à granulés, ouvrant sur une belle terrasse panoramique.

- Cuisine séparée de 12 m².

- Deux grandes chambres (13,2 m² et 13,8 m²).

- Salle de bains avec baignoire + douche avec fenêtre.

- WC indépendant avec fenêtre.

- Hall d’entrée accueillant de 11 m².

Au rez-de-jardin (101 m²)

- Trois chambres de 10 m².

- Espace d’env 13 m² avec salle d’eau – WC - buanderie à rénover

- Grand garage double (13 m² + 32 m²) avec portes motorisées.

Prestations techniques :

- Chauffage par pompe à chaleur Air/Eau et ballon thermodynamique.

- Isolation des murs et de la toiture.

- Combles aménageables avec fenêtres existantes.

- Menuiseries PVC double vitrage, volets roulants motorisés SOMFY connectés.

- Système d’alarme.

Extérieurs et environnement :

- Terrain de 1 296 m², piscinable, arboré et sans vis-à-vis.

- Mitoyenne d'un grand parc privé.

- Quartier résidentiel recherché, calme et entouré de verdure.

- Transports en commun accessibles rapidement.

- À moins de 10 minutes de Clermont-Ferrand.


Informations pratiques :

- Année de construction : Année 80

- Classe énergétique : C (nouvelle réglementation).
Coûts estimés entre 1 640 € et 2 280 € par an pour une utilisation standard (chauffage, eau chaude, éclairage, auxiliaires).

- Quartier : Montchany – Durtol

- Taxe foncière : 1 634 €

Honoraires agence à la charge du vendeur

Pour plus d’informations sur les risques auxquels ce bien est exposé, consultez le site Géorisques : www.georisques.gouv.fr (décret n°2022-1289 du 1er octobre 2022).

Pour toute information ou visite,
Véronique Hutin – Négociatrice & Associée JAUDE Immobilier
06 86 17 11 33 – v.hutin@jaudeimmobilier.fr

TRAD_ZEPHYR_Caracteristique TRAD_ZEPHYR_Valeurs
Code postal 63830
Surface habitable (m²) 156 m²
surface terrain 1 296 m²
Nombre de chambre(s) 5
Nombre de pièces 7
Nombre de niveaux 2
Vue Panoramique
TRAD_ZEPHYR_Caracteristique TRAD_ZEPHYR_Valeurs
Nb de salle de bains 1
Nb de salle d'eau 1
Cuisine Séparée
Type de cuisine SEMI-EQUIPEE
Mode de chauffage Electrique
Type de chauffage TRAD_TYPE_CHAUFF_AIR_EAU
Format de chauffage Individuel
Nombre de garage 1
Exposition Sud
Année de construction 1978
TRAD_ZEPHYR_Caracteristique TRAD_ZEPHYR_Valeurs
Prix de vente 490 000 €
Les honoraires d'agence seront intégralement à la charge du vendeur  
Taxe foncière annuelle 1 634 €
Etage 1
salon/sejour 36 m²

cuisine 12 m²

chambre 13.2 m²

chambre 13.8 m²

salle de bain 8.5 m²

entrée 11.2 m²

Rez de chaussée
chambre 10 m²

chambre 10.2 m²

chambre 10.4 m²

garage 45 m²

Projection Habitable 13.5 m²

DPE GES
  • Commerces et santé
  • Loisirs
  • Ecoles
  • Transports
  • Pratique
Contacter pour ce bien
L'agence
Téléphone 04 73 29 16 76
Adresse
46 place de Jaude 63000 Clermont-Ferrand

* Champ obligatoire

Les informations recueillies sur ce formulaire sont enregistrées dans un fichier informatisé par La Boite Immo agissant comme Sous-traitant du traitement pour la gestion de la clientèle/prospects de l'Agence / du Réseau qui reste Responsable du Traitement de vos Données personnelles.
La base légale du traitement repose sur l’intérêt légitime de l'Agence / du Réseau.
Elles sont conservées jusqu'à demande de suppression et sont destinées à l'Agence / au Réseau.
Conformément à la loi « informatique et libertés », vous pouvez exercer votre droit d'accès aux données vous concernant et les faire rectifier en contactant l'Agence / le Réseau.
Si vous estimez, après avoir contacté l'Agence / le Réseau, que vos droits « Informatique et Libertés » ne sont pas respectés, vous pouvez adresser une réclamation à la CNIL.
Nous vous informons de l’existence de la liste d'opposition au démarchage téléphonique « Bloctel », sur laquelle vous pouvez vous inscrire ici : https://www.bloctel.gouv.fr 
Dans le cadre de la protection des Données personnelles, nous vous invitons à ne pas inscrire de Données sensibles dans le champ de saisie libre
Ce site est protégé par reCAPTCHA, les Politiques de Confidentialité et les Conditions d'Utilisation de Google s'appliquent.

Découvrir nos outils