fr

Votre recherche

Exclusivité
Nouveauté
Ceyrat (63122)

3 pièces - 100 m²

Maison de bourg (100m2) avec petit garage et cave à Ceyrat

160 000 €
Ref : 1595VH
Découvrir le bien

JAUDE Immobilier vous propose en EXCLUSIVITÉ cette maison de bourg mitoyenne située Place du Mas à Ceyrat, à proximité immédiate des écoles, commerces et transports en commun.

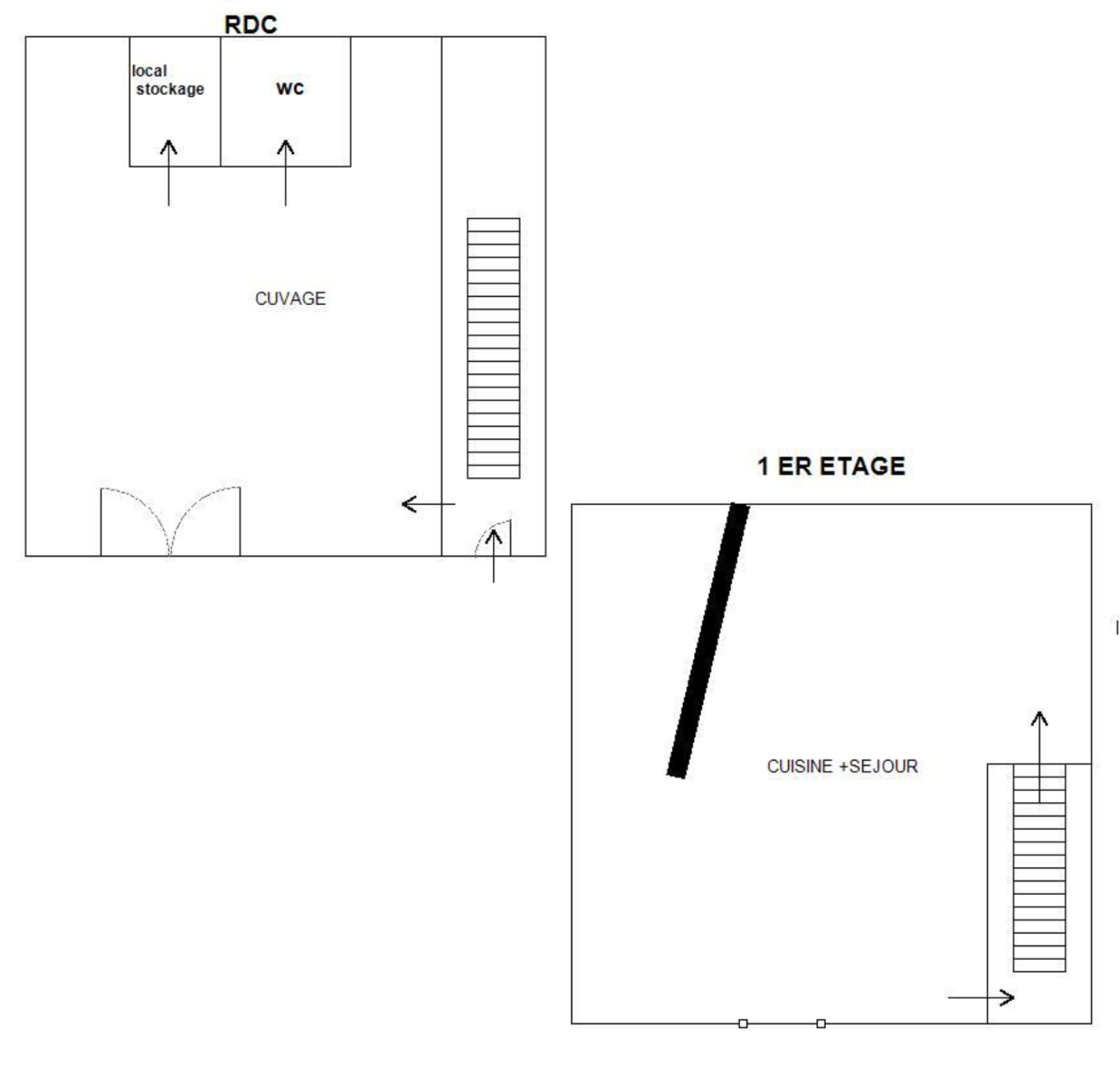
Construite vers 1900, cette maison s’élève sur trois niveaux d' 33 m² chacun. Elle dispose également d’un sous-sol complet.

Points forts :

- Rez-de-chaussée : pièce de vie avec cuisine ouverte, poêle à bois installé en 2018.

- 1er étage : dégagement, deux chambres dont une avec rangement, salle d’eau avec fenêtre et WC.

- 2ᵉ étage : grande pièce sous combles avec Velux, salle d’eau avec WC, débarras, grenier pour le rangement.

- Sous-sol : cave et petit garage.

Des travaux de rénovation sont à prévoir, notamment sur le plan énergétique (DPE classé G). Un audit énergétique complet a été réalisé et pourra être fourni. Le tableau électrique a été refait (2023).

Environnement et commodités :
La maison bénéficie d’un emplacement central dans le bourg de Ceyrat, avec accès immédiat aux écoles, commerces de proximité et lignes de bus.
Accès rapide aux autoroutes (A75 / A89) et à Clermont-Ferrand en quelques minutes.

Informations pratiques :

- Année de construction : 1900

- DPE : G - Audit énergétique réalisé (disponible sur demande)

- Quartier : Centre-bourg – Place du Mas à Ceyrat

- Taxe foncière : 1094 €

Honoraires agence à la charge du vendeur

Pour plus d’informations sur les risques auxquels ce bien est exposé, consultez le site Géorisques : www.georisques.gouv.fr (décret n°2022-1289 du 1er octobre 2022).

Pour toute information ou visite,
Véronique Hutin – Négociatrice & Associée JAUDE Immobilier
06 86 17 11 33 – v.hutin@jaudeimmobilier.fr

TRAD_ZEPHYR_Caracteristique TRAD_ZEPHYR_Valeurs
Code postal 63122
Surface habitable (m²) 100 m²
Nombre de chambre(s) 3
Nombre de pièces 3
Nombre de niveaux 3
TRAD_ZEPHYR_Caracteristique TRAD_ZEPHYR_Valeurs
Nb de salle d'eau 2
Cuisine Américaine
Type de cuisine Equipée
Mode de chauffage Bois
Type de chauffage Poêle
Format de chauffage Individuel
Exposition Sud-Est
Année de construction 1900
TRAD_ZEPHYR_Caracteristique TRAD_ZEPHYR_Valeurs
Copropriété NON
TRAD_ZEPHYR_Caracteristique TRAD_ZEPHYR_Valeurs
Prix de vente 160 000 €
Les honoraires d'agence seront intégralement à la charge du vendeur  
Taxe foncière annuelle 1 094 €
DPE GES
  • Commerces et santé
  • Loisirs
  • Ecoles
  • Transports
  • Pratique
Contacter pour ce bien
L'agence
Téléphone 04 73 29 16 76
Adresse
46 place de Jaude 63000 Clermont-Ferrand

* Champ obligatoire

Les informations recueillies sur ce formulaire sont enregistrées dans un fichier informatisé par La Boite Immo agissant comme Sous-traitant du traitement pour la gestion de la clientèle/prospects de l'Agence / du Réseau qui reste Responsable du Traitement de vos Données personnelles.
La base légale du traitement repose sur l’intérêt légitime de l'Agence / du Réseau.
Elles sont conservées jusqu'à demande de suppression et sont destinées à l'Agence / au Réseau.
Conformément à la loi « informatique et libertés », vous pouvez exercer votre droit d'accès aux données vous concernant et les faire rectifier en contactant l'Agence / le Réseau.
Si vous estimez, après avoir contacté l'Agence / le Réseau, que vos droits « Informatique et Libertés » ne sont pas respectés, vous pouvez adresser une réclamation à la CNIL.
Nous vous informons de l’existence de la liste d'opposition au démarchage téléphonique « Bloctel », sur laquelle vous pouvez vous inscrire ici : https://www.bloctel.gouv.fr 
Dans le cadre de la protection des Données personnelles, nous vous invitons à ne pas inscrire de Données sensibles dans le champ de saisie libre
Ce site est protégé par reCAPTCHA, les Politiques de Confidentialité et les Conditions d'Utilisation de Google s'appliquent.

Découvrir nos outils